Belangenvereniging reageert op startnotitie MER

Persbericht Startnotitie MER: Valse start bouwplannen Wippolder

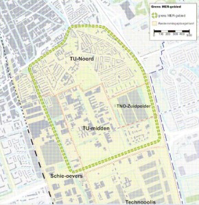
De gemeente Delft heeft plannen om meer dan 7.000 nieuwe woningen te bouwen in Delft Zuidost in de wijk Wippolder. Deze wijk telt nu minder dan 5.000 woningen. Vorig jaar is besloten dat voor deze plannen een milieueffectbeoordeling (m.e.r.) moet worden gemaakt. Met de Startnotitie m.e.r. Delft Zuidoost vraagt het stadsbestuur om reacties op de voorgenomen milieubeoordeling voor deze bouwplannen. De Startnotitie m.e.r. is volgens de Belangenvereniging TU Noord een valse start. De bewonersorganisatie is van mening dat nut en noodzaak van het hoge aantal woningen niet vast staan. Andere bouwlocaties zijn niet onderzocht en uitgerekend het effect op de leefbaarheid in de Wippolder wordt niet beoordeeld. De bewoners hopen dat de nieuwe gemeenteraad de plannen nog bijstelt.

De Belangenvereniging TU Noord heeft een uitgebreide zienswijze ingediend op de Startnotitie m.e.r. Delft Zuidoost. De bewonersvereniging heeft enkele keren gesproken met de gemeente en daar is wel geluisterd naar hun zorgen over de massale bouwplannen, maar dit heeft niet tot bijstelling van de plannen geleid. Ondanks goede voornemens van de gemeente zijn bewoners niet betrokken bij het ontwikkelen van de bouwplannen. Reacties van bewoners zijn wel gebruikt om de oude plannen nog beter te onderbouwen, maar niet om een nieuw begin te maken.

De afgelopen jaren hebben uitgewezen dat onzorgvuldige planvorming met onvoldoende draagvlak in de wijk heeft geleid tot een verlies van miljoenen euro’s en jaren vertraging. Keer op keer zoeken de plannenmakers de oplossing in nog uitgebreidere plannen met nog meer onderzoek en nog meer juridische inzet. Een deel van de plannen, zoals die om de Botanische Tuin te bebouwen, dateert al uit de jaren tachtig. De weerstand hiertegen is ook in de politiek alleen maar toegenomen. De belangenvereniging pleit ervoor om te investeren in een andere manier van werken. Meespraak in plaats van inspraak en rechtspraak en bewoners gebruiken als denkkracht in plaats van hindermacht.

Laat de Wippolder een leefbare wijk worden en niet de bouwput van Delft, zo stelt de belangenvereniging. Een m.e.r. is bedoeld als instrument voor zorgvuldige planvorming. In deze beoordeling moeten de belangen van de  leefomgeving volwaardig worden meegewogen en moet sprake zijn van werkelijke keuzes en alternatieven.

Lees hier onze zienswijze MER Delft ZO.

Laat een reactie achter

Je e-mailadres wordt niet gepubliceerd. Vereiste velden zijn gemarkeerd met *